Edificio de 12 viviendas en Navarrete, La Rioja
Edificio de 12 viviendas.
Navarrete, 2005.
El edificio se sitúa en la Calle de la Cruz 64, en pleno Camino de Santiago.
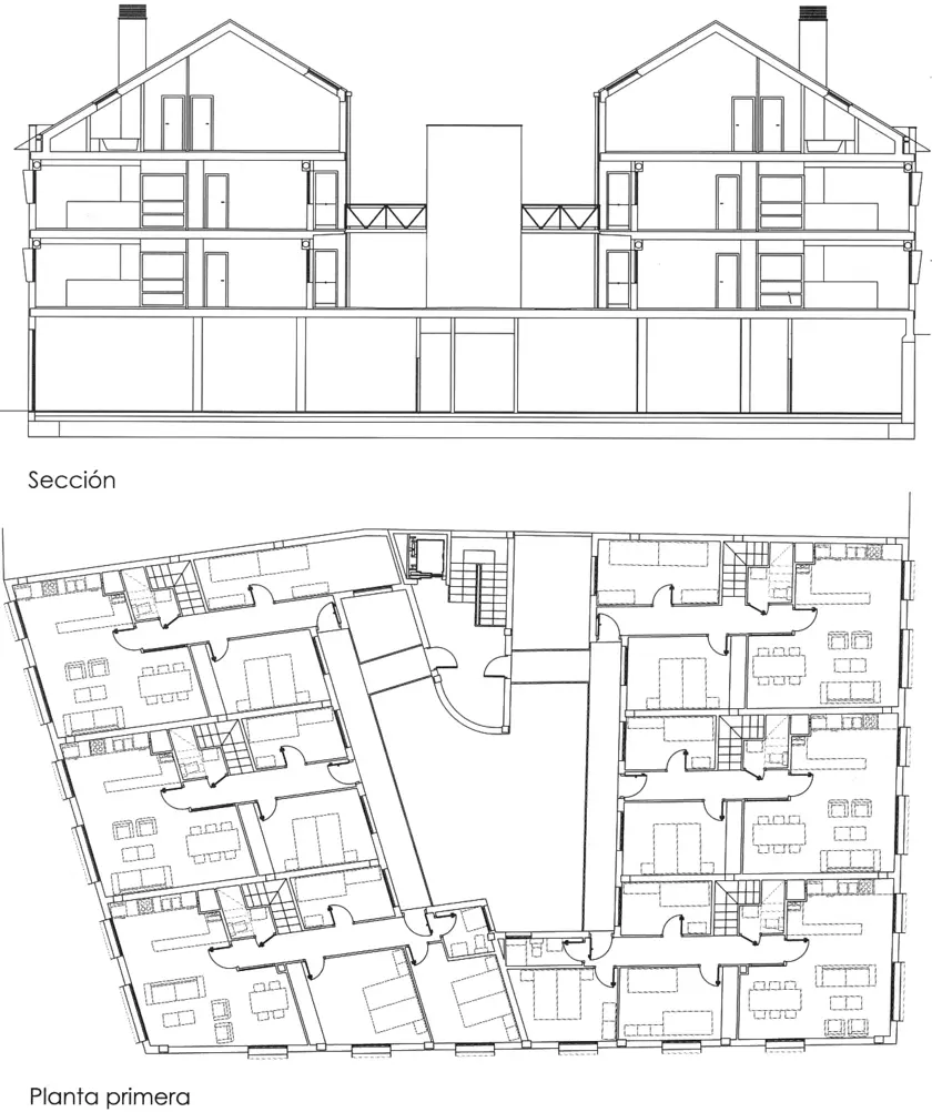
Dado el tamaño de la parcela, muy grande para lo habitual en un casco histórico, se optó por una tipología en corrala, que no obligase a multiplicar los núcleos de acceso.
Tanto en el volumen general como en fachada se intentó conciliar la sencillez de diseño con las soluciones tradicionales del casco histórico.
Edificio seleccionado para la exposición "Arquitecturas en La Rioja 2005 - 2006", organizada por el COAR.




