Edificio de 8 viviendas, en Marqués de Murrieta
Logroño, 1996.
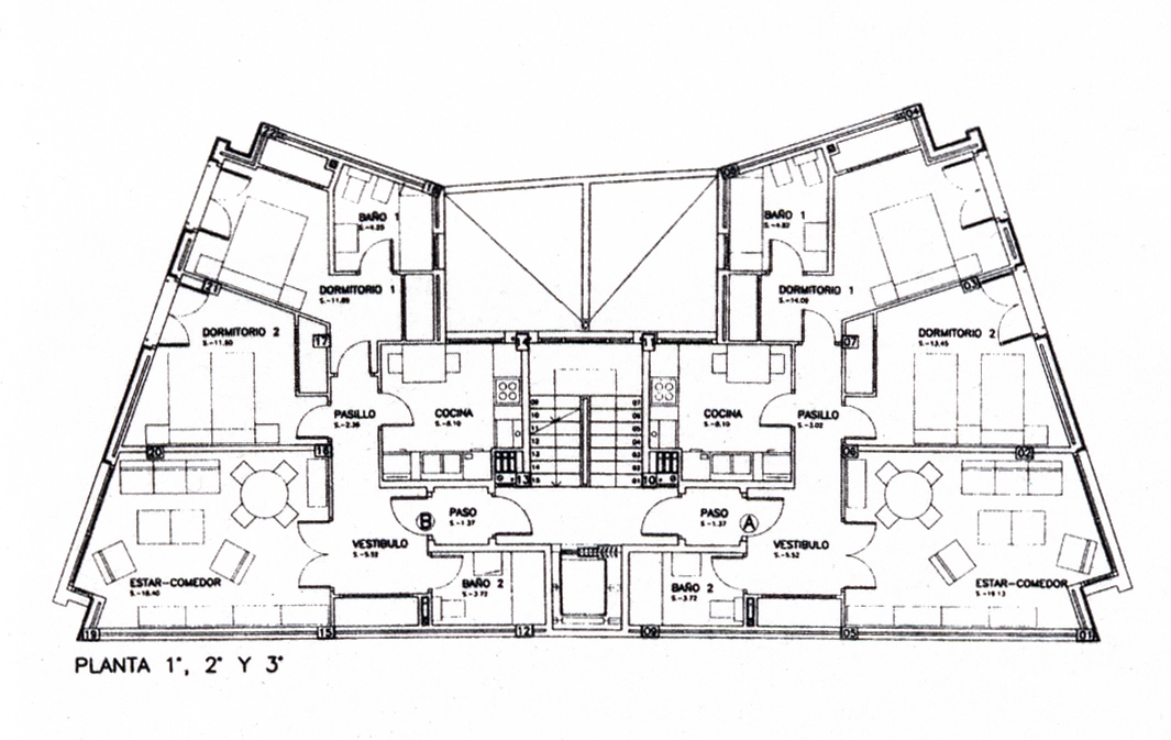
La forma del solar está condicionada por las dos calles que lo limitan, convergentes y muy próximas a su intersección, así como por el edificio-proa con el que comparte medianera y patio de luces.
Las fachadas se modulan con los huecos siguiendo el ritmo del revestimiento de piedra caliza blanca, que contrasta con la carpintería de madera. Las salas de estar tienen mirador en esquina y los dormitorios balcón, salvo en la última planta en la que el mirador se convierte en una doble ventana que contribuye a rematar el edificio. Los extremos de la fachada y la planta baja están revestidos de piedra oscura, aspecto que, junto con el voladizo de la fachada, hace que ésta parezca quedar en suspensión.
Edificio seleccionado para la exposición "Arquitecturas en La Rioja 1996", organizada por el COAR.





